Описание
Представляем вам новый типовой проект дома – комфортабельный коттедж, в котором, можно не только проводить время в кругу семьи, но и собираться с друзьями в удобной гостиной, из которой предусмотрен удобный выход на летнюю террасу.
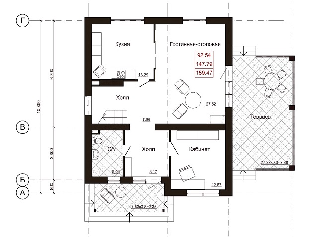
На первом этаже дома предусмотрена большая гостиная, объединенная с кухней, кабинет, просторный холл позволит свободно перемещяться во внутреннем пространстве дома. Предусмотрено два отдельных выхода с разных сторон дома, чтобы повысить удобство в эксплуатации.
На втором этаже расположены три уютные спальных комнаты, одна из которых имеет выход на балкон. Имеется просторная ванная комната и отдельный сан. узел.
Отличительные особенности:
- Надежность: проект разработан для IIIБ климатического района и сейсмичностью площадки строительства 7 баллов.
- Улучшенная планировка: 2 этажа, 4 комнаты, 2 входа – парадный и из гостиной, балкон из спальни, сан. узлы на каждом этаже.
- Фундаменты: монолитный ростверк толщиной 400 мм по буронабивным сваям диаметром 350мм, глубиной 3,0м. Заглубление ростверка - на 100 мм ниже отмостки.
- Наружные стены выполнены из керамзитобетонного блока, толщиной 400 мм и наружным слоем штукатурки, перегородки из керамзитобетонного блока толщиной 100 мм.
- Кровля скатная, покрытая металлочерепицей, с организованным водоотводом по желобам и водосточным трубам на отмостку здания.
